Продается дом, 562 кв.м., /2 эт
Обзор№ - 44
| Стоимость | 19 500 000 |
|---|---|
| Комнат в доме | 10 |
| Тип комнат | раздельные |
| Право собственности | Собственник |
| Тип парковки | Гараж |
| Ремонт | Требует ремонта |
| Тип строения | Дом |
| Площадь, кв.м. | 562 |
| Площадь участка, сот | 15 |
| Этажность | 2 |
| Материал стен | Кирпич |
Адрес
| Населенный пункт | Томск |
|---|---|
| Район города | коттеджный посёлок Холмы |
| Улица | улица Александра Попова |
| Номер дома | 6 |
В избранное Дом 562 м² на участке 15 сот. в современном экопоселке «Холмы Village»
Продается двухэтажный дом в современном экопоселке «Холмы Village» в пригороде Томска, состоящем из 40 домовладений. Это уникальное место, где вы сможете насладиться жизнью в сердце Сибири с комфортом и удобствами.
Преимущества жизни в «Холмах»:
- Дружелюбное соседское сообщество
- Архитектурное единство всех домов
- Собственная управляющая компания
- Отсутствие налога на недвижимость
Описание дома:
- Качественная черновая отделка
- Фундамент на сваях
- Крыша из металлочерепицы
- Шлифованная стяжка на полу
- Высота потолков 4,2 м
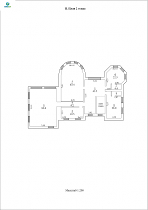
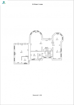
Планировка:
- Котельная
- Гараж на 4 автомобиля
- Просторная кухня и гостиная
- 10 комнат
- Большой холл на втором этаже
- 2 санузла на первом этаже и 2 санузла на втором этаже
В этом доме вы сможете реализовать любые дизайнерские идеи и создать пространство своей мечты.
Коммуникации:
- Электричество, центральное водоснабжение и газ уже подключены
- Септик
Поселок предлагает асфальтированные дороги, а также близость к супермаркетам и остановкам общественного транспорта.
Не упустите возможность стать частью этого замечательного сообщества! Звоните, мы ответим на все ваши вопросы и организуем просмотр.























